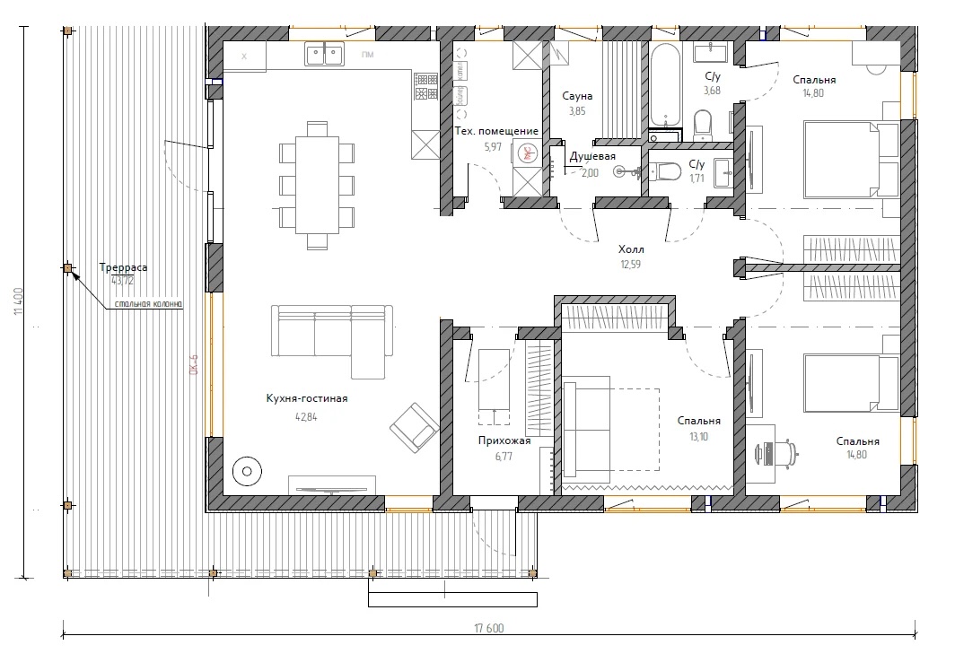
Дом из щепоцементных блоков 11х17
Кол-во с/у: 2
По материалу: Дома из щепоцементных блоков
Общая площадь: 165 кв. м.
Этажность: 1 этаж
Высота потолков 1-го этажа: 2,75
Общее кол-во спален: 3
Терраса: Да
Сауна: Да
Общее кол-во сан. узлов: 2
География строительства
Другие проекты
Характеристики проекта
Кол-во с/у: 2
Дома из щепоцементных блоков
Общая площадь: 113 кв. м.
Площадь помещений: 92 кв. м.
Характеристики проекта
Кол-во с/у: 2
Дома из щепоцементных блоков
Общая площадь: 133 кв. м.
Площадь помещений: 110 кв. м.
Характеристики проекта
Кол-во с/у: 2
Дома из щепоцементных блоков
Общая площадь: 165 кв. м.
Этажность: 1 этаж
Характеристики проекта
Кол-во с/у: 2
Дома из щепоцементных блоков
с террасой, со спальней на 1 этаже
Общая площадь: 206 кв. м.
Характеристики проекта
Кол-во с/у: 2
Общая площадь: 171 кв. м.
Площадь помещений: 151 кв. м.
Этажность: 1 этаж
Характеристики проекта
Кол-во с/у: 2
Общая площадь: 170 кв. м.
Площадь помещений: 144 кв. м.
Этажность: 1 этаж



